WATERHILL
From: $ 680,200
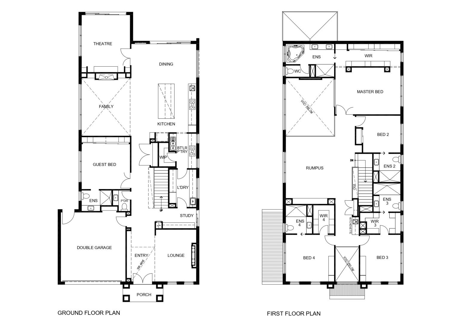
| Home Dimensions | |
| House Area | 423.73 m2 (45.61 sqr.) |
| Garage Area | 36.88 m2 (3.97 sqr.) |
| Portico | 5.22 m2 (0.56 sqr.) |
| Total Area | 465.83m2 (50.14 sqr.) |
| House Width | 12.20 m |
| House Length | 25.00 m |
| Minimum Block Width | 14.00 m |
| Minimum Block Depth | 32.00 m |
| Room Dimensions | |
| Family | 5.00m x 4.29m |
| Dining | 3.45m x 5.63m |
| Lounge | 4.50m x 3.59m |
| Theatre | 4.46m x 4.20m |
| Master Bed | 4.06m x 5.63m |
| Guest Bed | 3.91m x 4.20m |
| Bed 2 | 3.20m x 3.84m |
| Bed 3 | 4.05m x 3.50m |
| Bed 4 | 4.05m x 4.20m |
| Rumpus | 5.38m x 5.99m |
| Double Garage | 6.00m x 5.61m |
