ELMSGATE
From: $ 786,767
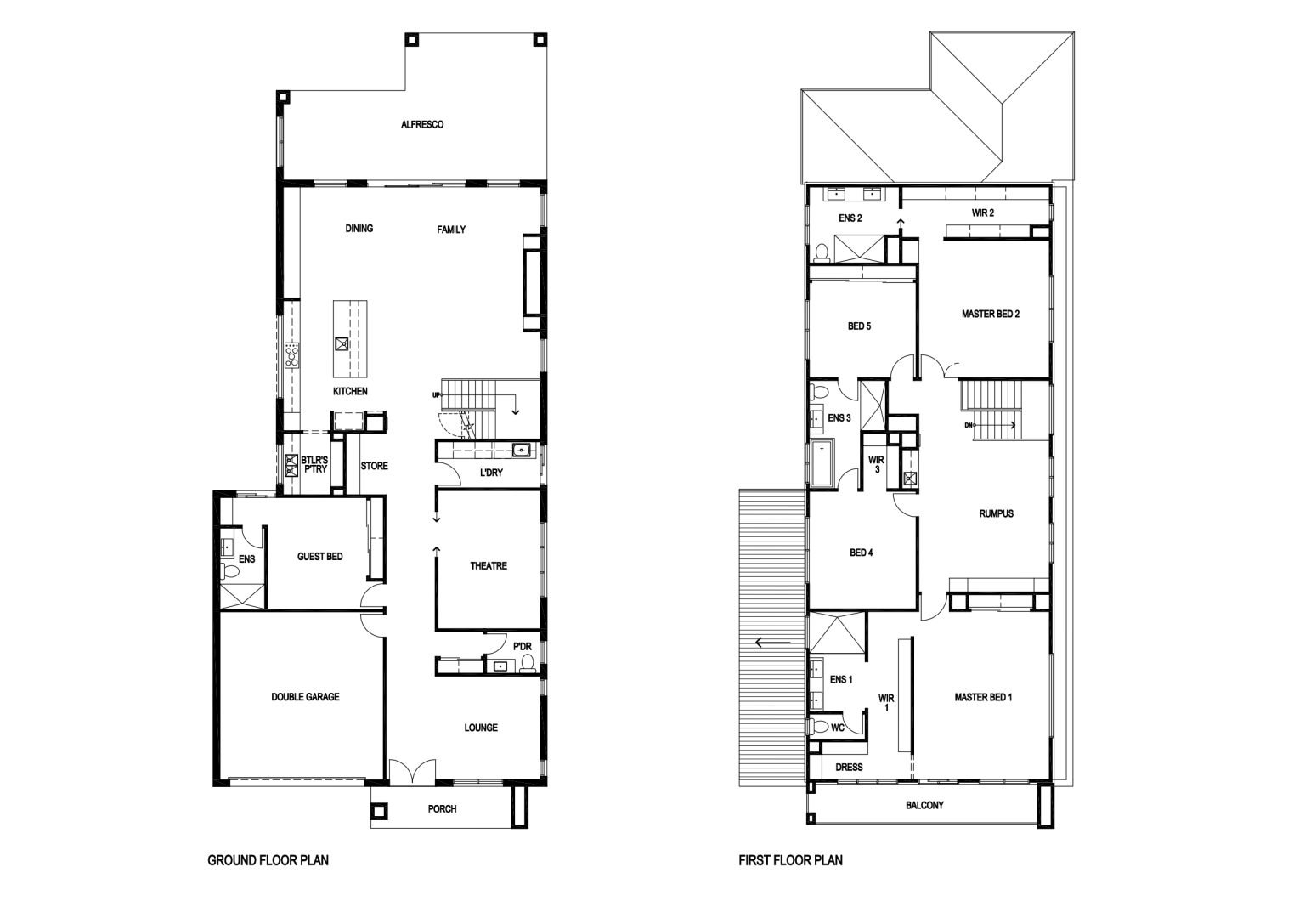
| Home Dimensions |
| House Area | 386.25 m2 (41.58 sqr.) |
| Garage Area | 37.88 m2 (4.08 sqr.) |
| Portico | 8.41 m2 (0.91 sqr.) |
| Alfresco | 41.28 m2 (4.44 sqr.) |
| Balcony | 12.72 m2 (1.37 sqr.) |
| Total Area | 486.54 m2 (52.37 sqr.) |
| House Width | 11.92 m |
| House Length | 28.38 m |
| Minimum Block Width | 13.00 m |
| Minimum Block Depth | 34.00 m |
| Room Dimensions |
| Family | 6.85m x 5.51m |
| Dining | 3.97m x 3.67m |
| Living | 3.70m x 5.51m |
| Theatre | 4.94m x 3.66m |
| Master Bed 1 | 6.00m x 4.85m |
| Master Bed 2 | 4.91m x 4.67m |
| Guest Bed | 3.99m x 3.55m |
| Bed 4 | 4.20m x 3.82m |
| Bed 5 | 3.40m x 3.82m |
| Rumpus | 5.46m x 4.67m |
| Double Garage | 6.00m x 5.84m |