TIERRA 60

From: $ 694, 848

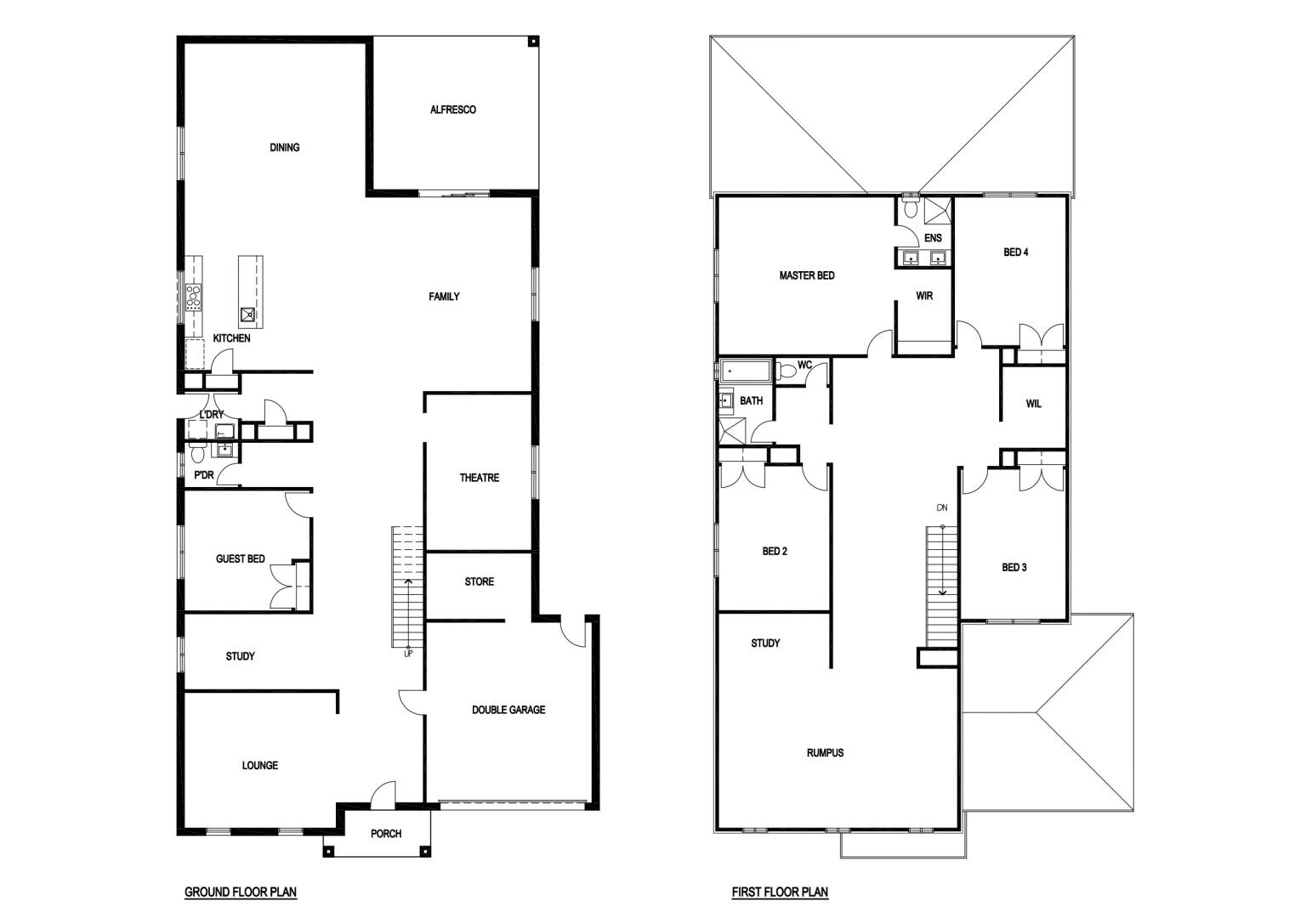
Home Dimensions
House Area488.19 m2 (52.55 sqr.)
Garage Area36.24 m2 (3.90 sqr.)
Portico4.93 m2 (0.53 sqr.)
Alfresco28.05 m2 (3.01 sqr.)
Total Area557.40 m2 (60.00 sqr.)
House Width14.00 m
House Length 27.21 m
Minimum Block Width16.00 m
Room Dimensions
Family6.45m x 5.50m
Dining5.10m x 6.02m
Master Bed5.23m x 5.84m
Guest Bed4.00m x 3.57m
Bed 24.80m x 3.69m
Bed 34.98m x 3.50m
Bed 44.93m x 3.70m
Lounge4.50m x 5.04m
Rumpus5.30m x 7.93m
Theatre5.17m x 3.50m
Double Garage6.00m x 5.50m