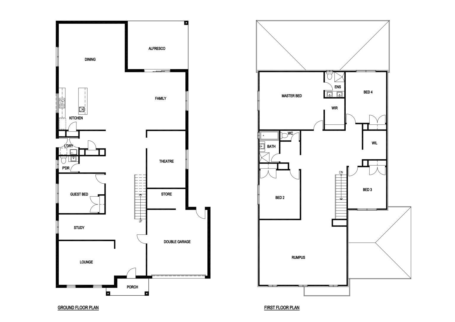
TIERRA 55

From: $ 656,195

Home Dimensions
House Area445.49 m2 (47.95 sqr.)
Garage Area36.24 m2 (3.90 sqr.)
Portico5.14 m2 (0.55 sqr.)
Alfresco24.14 m2 (2.59 sqr.)
Total Area510.95 m2 (55.00 sqr.)
House Width14.00 m
House Length 24.90 m
Minimum Block Width16.00 m
Room Dimensions
Family5.25m x 5.50m
Dining4.39m x 6.02m
Master Bed5.23m x 5.84m
Guest Bed3.60m x 3.57m
Bed 24.42m x 3.69m
Bed 33.78m x 3.50m
Bed 44.63m x 3.70m
Lounge4.00m x 5.04m
Rumpus5.90m x 7.93m
Theatre5.17m x 3.50m
Double Garage6.00m x 5.50m