TIERRA 60

From: $692,992

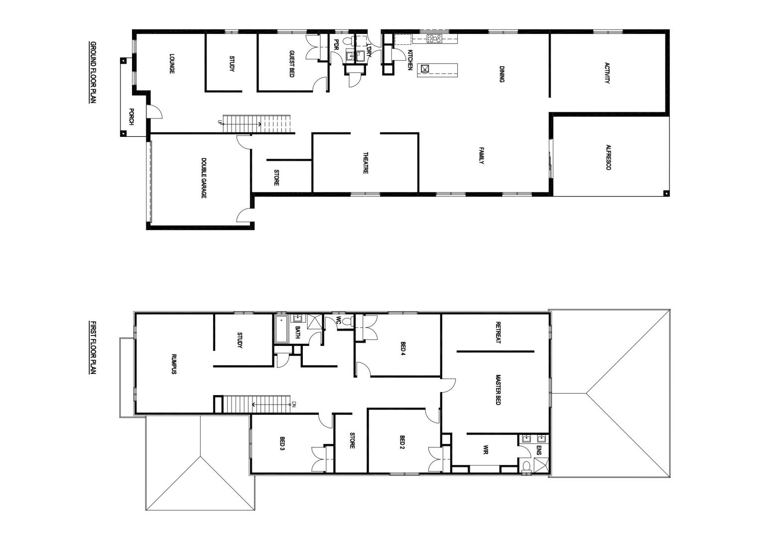
Home Dimensions
House Area482.18 m2 (43.04 sqr.)
Garage Area36.24 m2 (3.90 sqr.)
Portico5.43 m2 (0.58 sqr.)
Alfresco33.50 m2 (3.60 sqr.)
Total Area557.40 m2 (60.00 sqr.)
House Width12.00 m
House Length 32.91 m
Minimum Block Width14.00 m
Room Dimensions
Family7.79m x 4.80m
Dining5.49m x 3.82m
Master Bed6.42m x 4.84m
Guest Bed3.56m x 3.42m
Bed 24.31m x 3.80m
Bed 34.31m x 3.50m
Bed 44.50m x 3.70m
Theatre6.26m x 3.50m
Lounge4.11m x 3.42m
Activity6.89m x 4.72m
Rumpus4.62m x 5.93m
Retreat6.42m x 2.20m
Double Garage6.00m x 5.50m