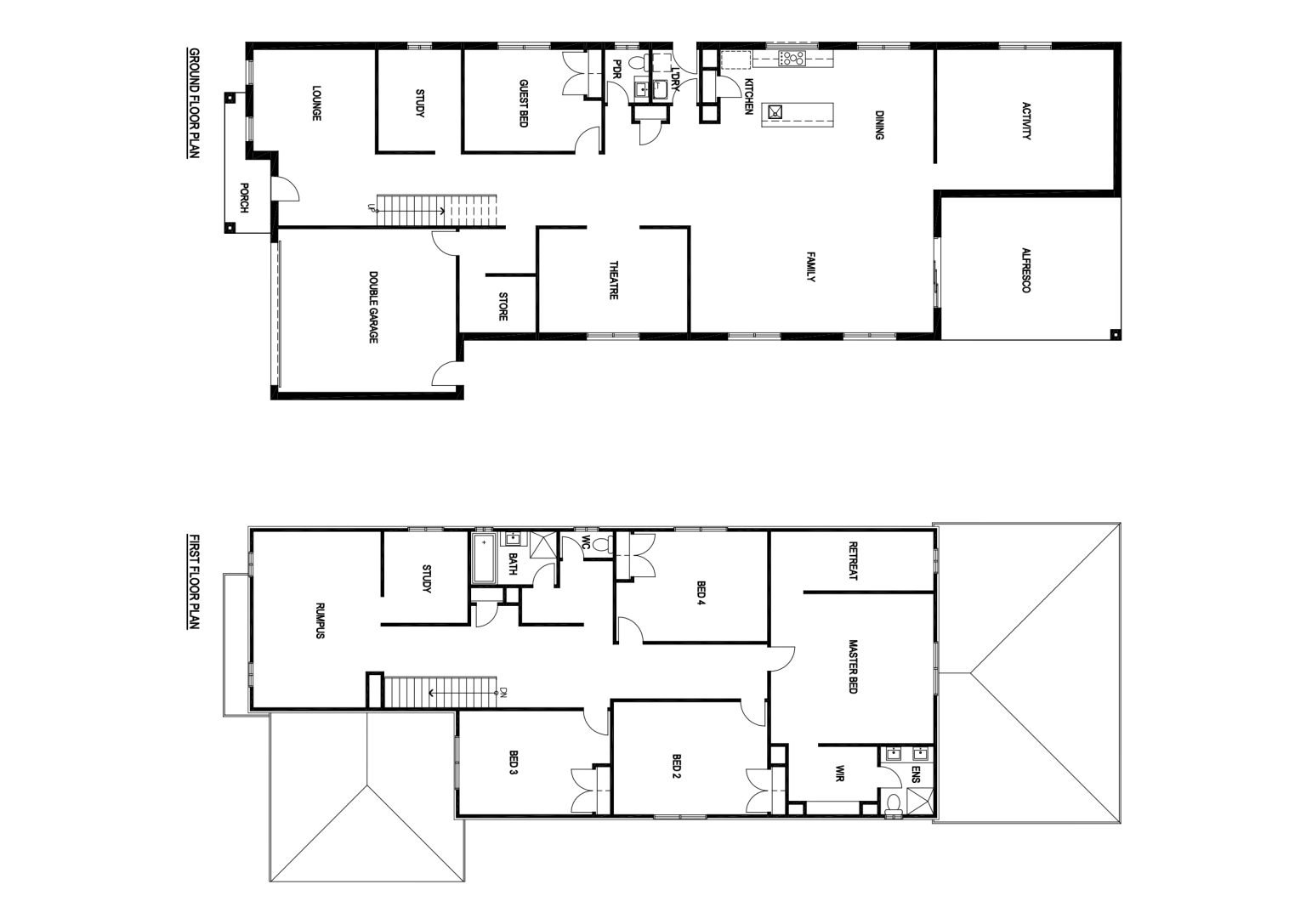
TIERRA 55

From: $ 654,393

Home Dimensions
House Area440.23 m2 (47.38 sqr.)
Garage Area36.24 m2 (3.90 sqr.)
Portico5.43 m2 (0.58 sqr.)
Alfresco29.03 m2 (2.48 sqr.)
Total Area510.95 m2 (55.00 sqr.)
House Width12.00 m
House Length 30.11 m
Minimum Block Width14.00 m
Room Dimensions
Family8.18m x 4.80m
Dining3.38m x 3.82m
Master Bed5.49m x 5.04m
Guest Bed4.03m x 3.42m
Bed 25.19m x 3.80m
Bed 34.49m x 3.50m
Bed 44.50m x 3.70m
Theatre5.00m x 3.50m
Lounge4.11m x 3.42m
Activity5.96m x 4.72m
Rumpus3.80m x 5.95m
Retreat5.49m x 2.00m
Double Garage6.00m x 5.50m