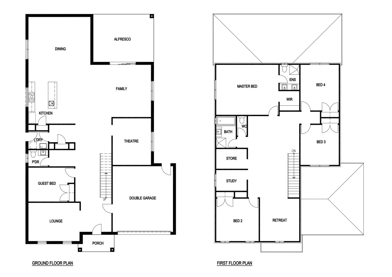
TIERRA 45
From: $ 573,689
| Home Dimensions | |
| House Area | 353.14 m2 (38.01 sqr.) |
| Garage Area | 36.24m2 (3.90 sqr.) |
| Portico | 4.73 m2 (0.50 sqr.) |
| Alfresco | 23.92 m2 (2.57 sqr.) |
| Total Area | 418.05 m2 (45.00 sqr.) |
| House Width | 13.63 m |
| House Length | 21.58 m |
| Minimum Block Width | 16.00 m |
| Room Dimensions | |
| Family | 4.77m x 5.50m |
| Dining | 4.35m x 5.65m |
| Master Bed | 4.57m x 5.67m |
| Guest Bed | 3.11m x 3.57m |
| Bed 2 | 3.88m x 3.88m |
| Bed 3 | 3.66m x 3.50m |
| Bed 4 | 4.17m x 3.50m |
| Lounge | 3.50m x 4.66m |
| Retreat | 3.88m x 3.59m |
| Theatre | 4.26m x 3.50m |
| Double Garage | 6.00m x 5.50m |
