TIERRA 40

From: $ 533,180

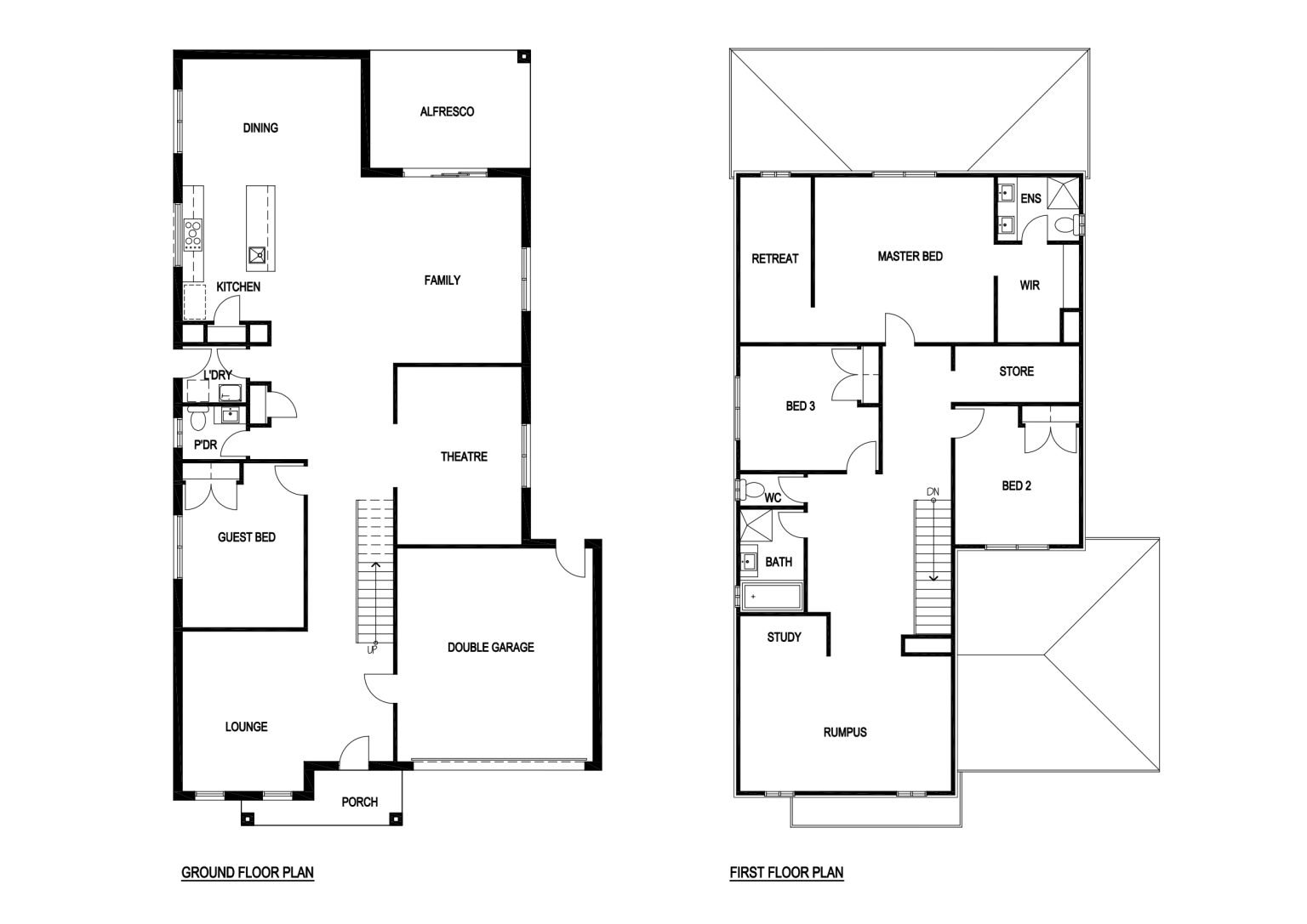
Home Dimensions
House Area315.22 m2 (33.93 sqr.)
Garage Area36.24 m2 (3.90 sqr.)
Portico5.28 m2 (0.56 sqr.)
Alfresco14.86 m2 (1.60 sqr.)
Total Area371.63 m2 (40.00 sqr.)
House Width12.00 m
House Length 21.74 m
Minimum Block Width14.00 m
Room Dimensions
Family5.23m x 4.50m
Dining3.56m x 5.02m
Master Bed4.65m x 5.04m
Guest Bed4.03m x 3.42m
Bed 23.30m x 3.50m
Bed 33.50m x 3.30m
Theatre5.00m x 3.50m
Lounge4.50m x 3.42m
Rumpus3.80m x 5.93m
Retreat4.65m x 2.00m
Double Garage6.00m x 5.50m