NIEBO
From: $ 425,823
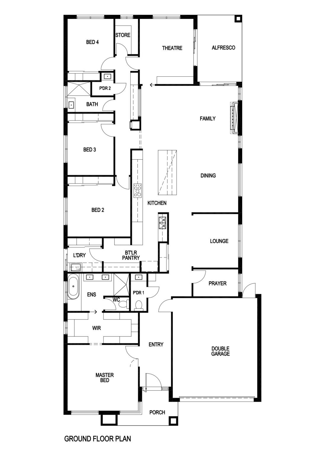
| Home Dimensions | |
| House Area | 250.04m2(26.91 sqr.) |
| Garage Area | 38.93 m2(4.19 sqr.) |
| Portico | 6.78 m2(0.73 sqr.) |
| Alfresco | 12.59 m2(1.36 sqr.) |
| Total Area | 308.34 m2(33.19 sqr.) |
| House Width | 12.80 m |
| House Length | 26.63 m |
| Minimum Block Width | 14.00 m |
| Minimum Block Depth | 34.00 m |
| Room Dimensions | |
| Family | 4.19m x 6.31m |
| Dining | 4.00m x 4.00m |
| Lounge | 3.50m x 2.93m |
| Theater | 4.25m x 3.50m |
| Master Bed | 4.29m x 4.01m |
| Bed 2 | 3.30m x 4.09m |
| Bed 3 | 3.40m x 3.00m |
| Bed 4 | 3.40m x 3.00m |
| Double Garage | 6.50m x 5.50m |
