MENAGE 40
From: $ 463,122
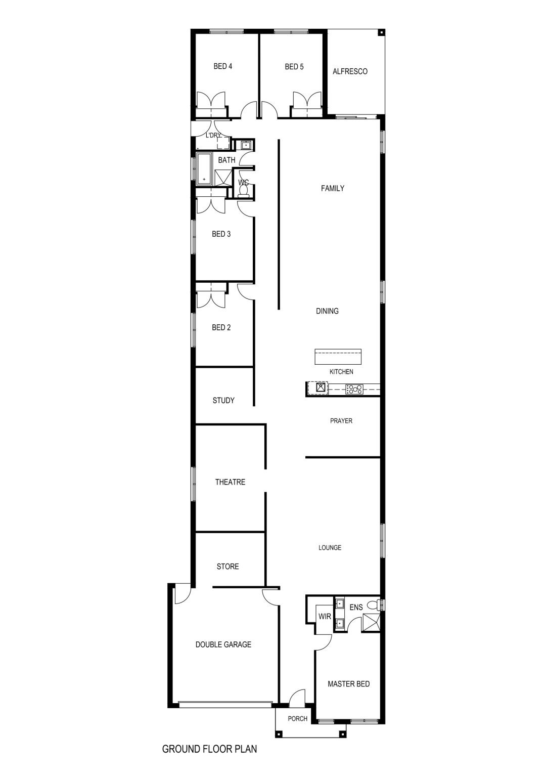
| Home Dimensions |
| House Area | 318.04 m2 (34.23 sqr.) |
| Garage Area | 36.05 m2 (3.88 sqr.) |
| Portico | 4.18 m2 (0.45 sqr.) |
| Alfresco | 13.32 m2 (1.43 sqr.) |
| Total Area | 371.59 m2 (40.00 sqr.) |
| House Width | 11.30 m |
| House Length | 36.84 m |
| Minimum Block Width | 12.50 m |
| Room Dimensions |
| Family | 6.00m X 5.24m |
| Dining | 5.96m X 5.24m |
| Lounge | 6.60m X 3.89m |
| Master Bed | 5.00m X 3.35m |
| Bed 2 | 3.75m X 3.00m |
| Bed 3 | 4.22m X 3.00m |
| Bed 4 | 3.75m X 3.27m |
| Bed 5 | 3.75m X 3.26m |
| Study | 2.90m X 3.00m |
| Store | 2.00m X 3.00m |
| Prayer | 3.09m X 3.89m |
| Theatre | 6.28m X 3.60m |
| Double Garage | 6.00m X 5.50m |