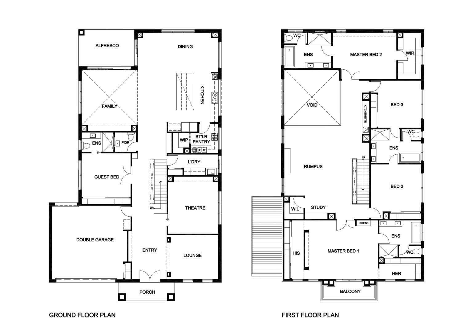
LARKWORTHY

From: $ 680,474

Home Dimensions
House Area436.82 m2 (47.02 sqr.)
Garage Area40.11 m2 (4.32 sqr.)
Portico6.87 m2 (0.74 sqr.)
Alfresco13.62 m2 (1.47 sqr.)
Balcony6.38 m2 (0.69 sqr.)
Total Area503.80m2 (54.23 sqr.)
House Width14.00 m
House Length 22.00 m
Minimum Block Width16.00 m
Minimum Block Depth32.00 m
Room Dimensions
Family4.50m x 4.54m
Dining3.21m x 6.58m
Lounge3.60m x 4.10m
Theatre4.66m x 4.10m
Guest Bed3.56m x 4.00m
Master Bed 14.80m x 5.94m
Master Bed 23.80m x 5.19m
Bed 33.85m x 3.50m
Bed 43.85m x 4.10m
Rumpus5.69m x 5.55m
Double Garage6.00m x 5.80m