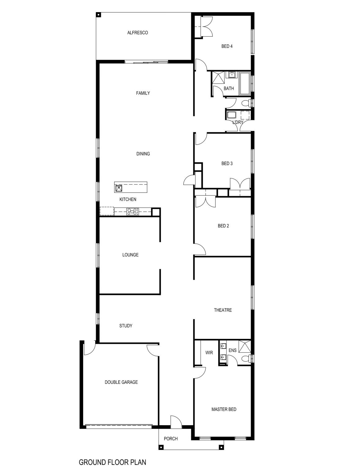
HOMESTEAD 40
From: $ 466,079
| Home Dimensions | |
| House Area | 305.77 m2 (32.91 sqr.) |
| Garage Area | 36.04 m2 (3.88 sqr.) |
| Portico | 5.40 m2 (0.58 sqr.) |
| Alfresco | 24.43 m2 (2.63 sqr.) |
| Total Area | 371.65 m2 (40.00 sqr.) |
| House Width | 12.80 m |
| House Length | 32.12 m |
| Minimum Block Width | 14.00 m |
| Room Dimensions | |
| Family | 5.70m X 6.89m |
| Dining | 3.00m X 6.73m |
| Lounge | 5.63m X 4.41m |
| Master Bed | 5.20m X 4.44m |
| Bed 2 | 4.30m X 4.14m |
| Bed 3 | 4.00m X 3.54m |
| Bed 4 | 4.00m X 3.54m |
| Theatre | 6.01m X 4.14m |
| Study | 3.50m X 4.39m |
| Double Garage | 6.00m X 5.50m |
