HARBOUR 45
From: $579,360
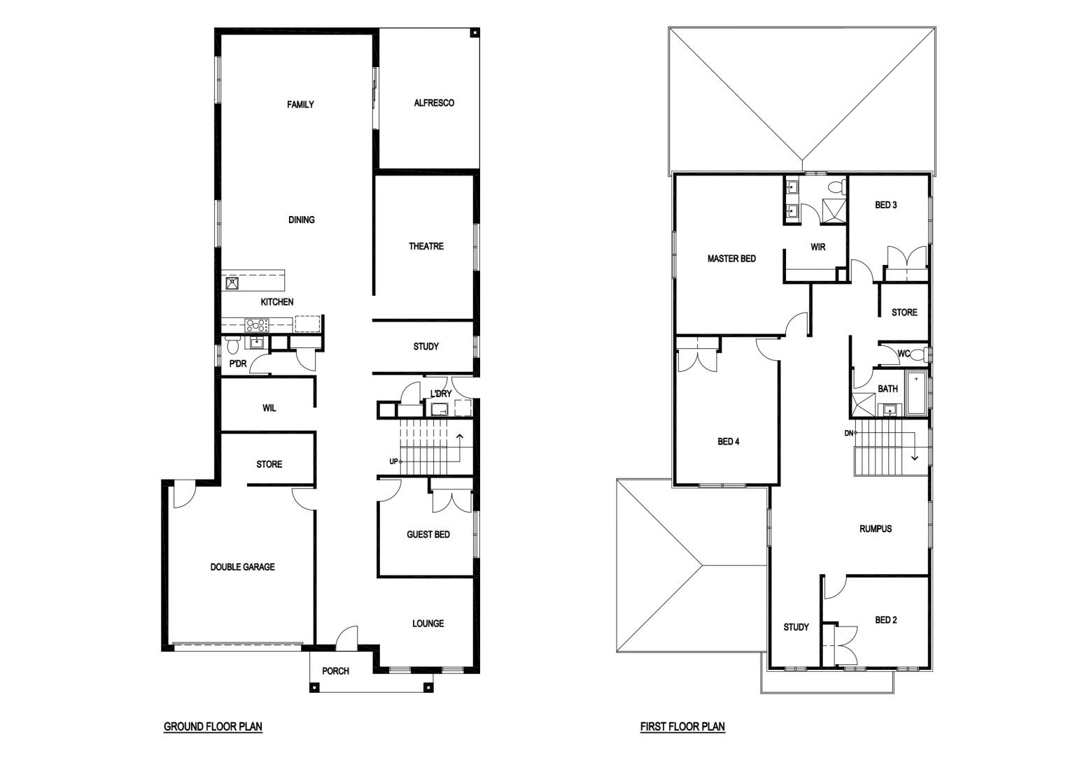
| Home Dimensions | |
| House Area | 356.28 m2 (38.24 sqr.) |
| Garage Area | 36.24 m2 (3.90 sqr.) |
| Portico | 5.31 m2 (0.57 sqr.) |
| Alfresco | 20.21 m2 (2.17 sqr.) |
| Total Area | 418.05 m2 (45.00 sqr.) |
| House Width | 12 m |
| House Length | 25.07 m |
| Minimum Block Width | 14 m |
| Room Dimensions | |
| Family | 5.32m x 5.72m |
| Dining | 3.57m x 5.72m |
| Master Bed | 6.00m x 4.04m |
| Guest Bed | 3.11m x 3.54m |
| Bed 2 | 3.40m x 3.40m |
| Bed 3 | 3.40m x 3.00m |
| Bed 4 | 4.95m x 3.84m |
| Theatre | 5.43m x 3.71m |
| Lounge | 3.36m x 3.54m |
| Rumpus | 3.71m x 4.09m |
| Double Garage | 6.00m x 5.50m |
