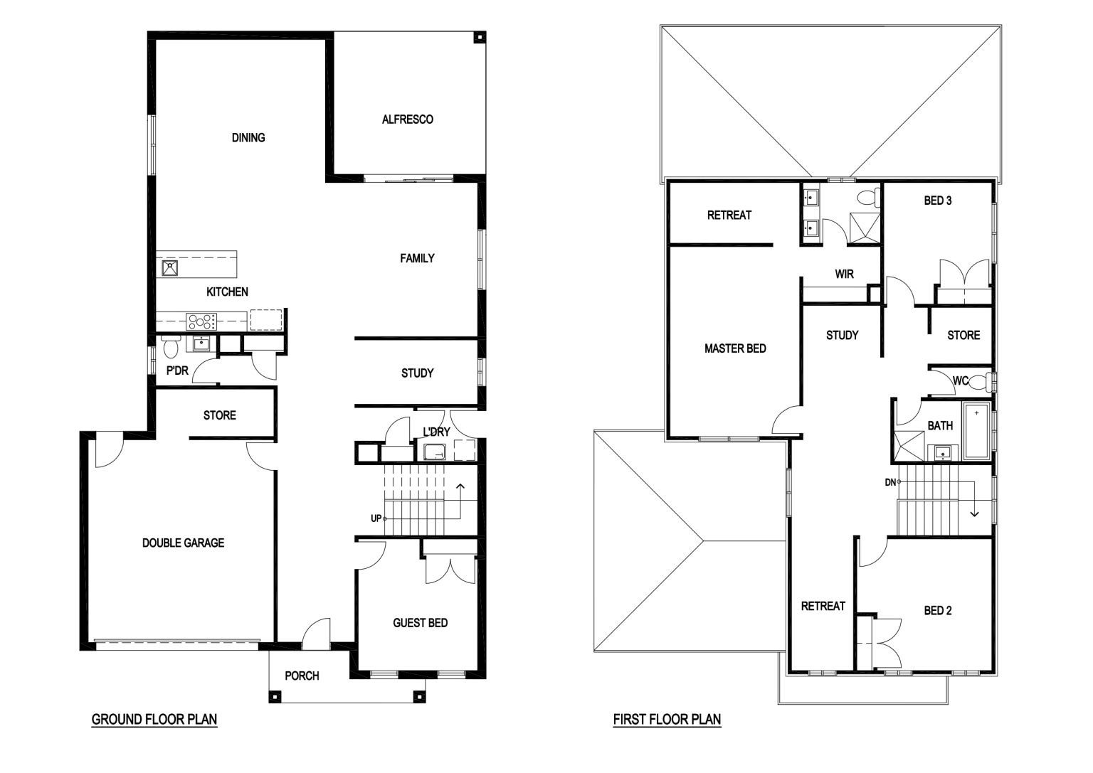
HARBOUR 35
From: $502,134
| Home Dimensions | |
| House Area | 264.58 m2 (28.48 sqr.) |
| Garage Area | 36.24 m2 (3.90 sqr.) |
| Portico | 5.29 m2 (0.56 sqr.) |
| Alfresco | 19.03 m2 (2.04 sqr.) |
| Total Area | 325.15 m2 (35.00 sqr.) |
| House Width | 12 m |
| House Length | 19.85 m |
| Minimum Block Width | 14 m |
| Room Dimensions | |
| Family | 4.56m x 4.50m |
| Dining | 4.23m x 5.02m |
| Master Bed | 5.62m x 3.84m |
| Guest Bed | 3.30m x 3.54m |
| Bed 2 | 3.90m x 3.40m |
| Bed 3 | 3.00m x 3.20m |
| Double Garage | 6.00m x 5.50m |
