HACIENDA 45
From: $ 580,647
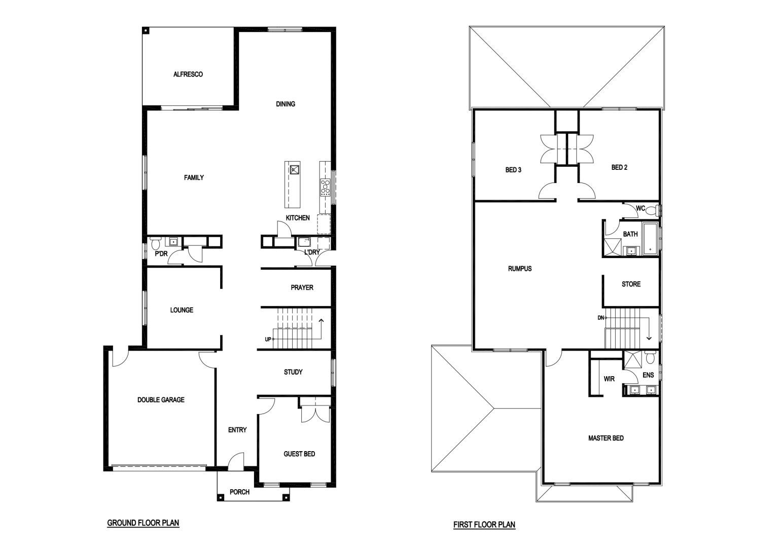
| Home Dimensions | |
| House Area | 358.31 m2 (38.57 sqr.) |
| Garage Area | 36.24 m2 (3.90 sqr.) |
| Portico | 4.31 m2 (0.46 sqr.) |
| Alfresco | 19.24 m2 (2.07 sqr.) |
| Total Area | 418.05 m2 (45.00 sqr.) |
| House Width | 12.00 m |
| House Length | 24.49 m |
| Minimum Block Width | 14.00 m |
| Room Dimensions | |
| Family | 6.44m x 4.74m |
| Dining | 6.70m x 4.78m |
| Lounge | 4.20m x 3.50m |
| Master Bed | 4.40m x 5.93m |
| Guest Bed | 3.93m x 3.73m |
| Bed 2 | 4.65m x 4.11m |
| Bed 3 | 4.65m x 4.12m |
| Rumpus | 7.58m x 6.58m |
| Double Garage | 6.00m x 5.50m |
