HACIENDA 60

From: $ 696,486

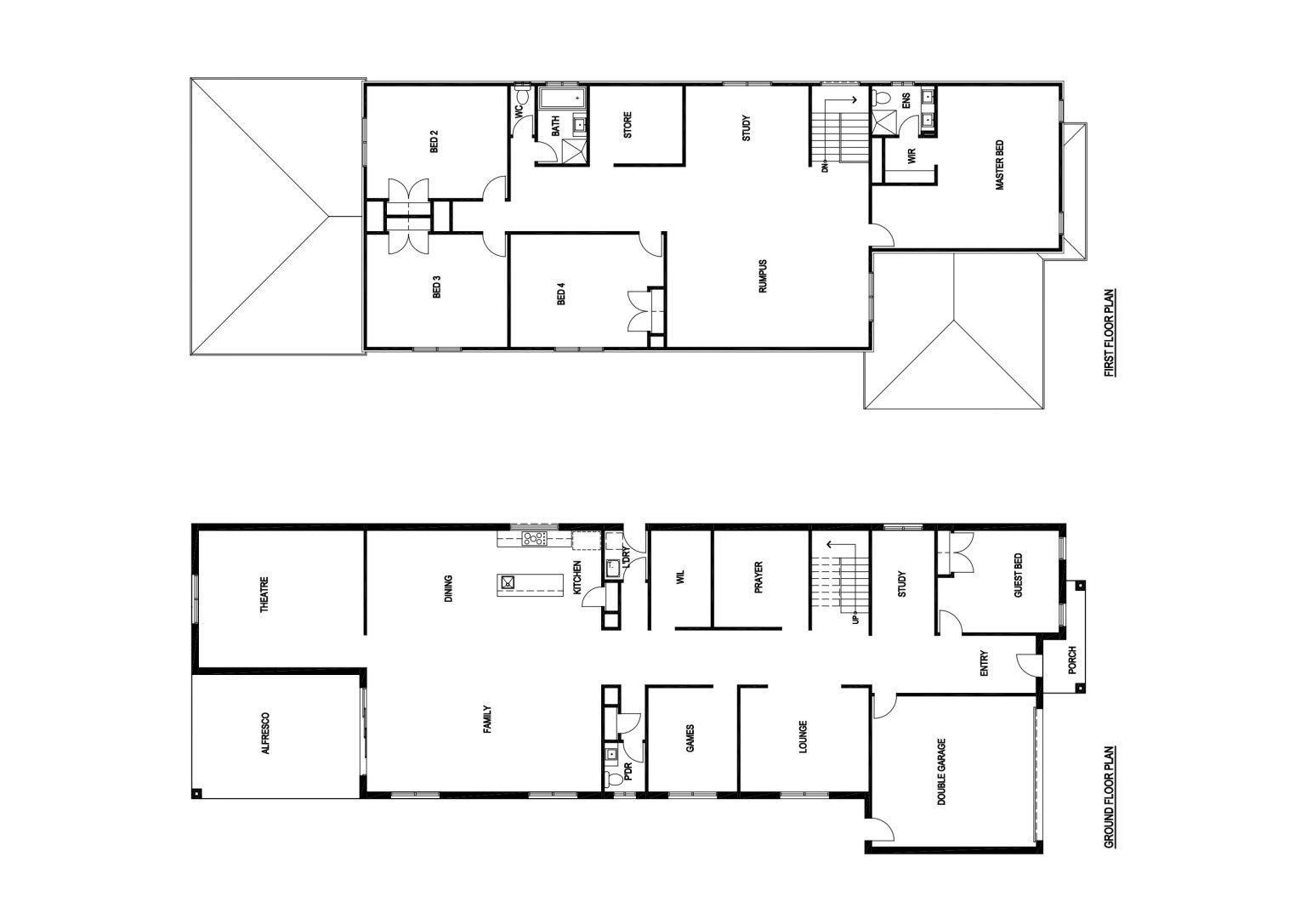
Home Dimensions
House Area489.00 m2 ( 52.64 sqr.)
Garage Area36.24 m2 (3.90 sqr.)
Portico4.54 m2 (0.48 sqr.)
Alfresco27.66 m2 (2.98 sqr.)
Total Area557.45 m2 (60.00 sqr.)
House Width12.00 m
House Length 32.52 m
Minimum Block Width14.00 m
Room Dimensions
Family8.56m x 4.52m
Dining4.76m x 5.00m
Lounge4.70m x 3.80m
Master Bed4.44m x 5.93m
Guest Bed3.93m x 3.73m
Bed 25.14m x 4.11m
Bed 35.14m x 4.12m
Bed 45.00m x 4.12m
Rumpus7.37m x 6.58m
Theatre6.03m x 5.00m
Games3.26m x 4.02m
Double Garage6.00m x 5.50m