HACIENDA 55

From: $ 653,979

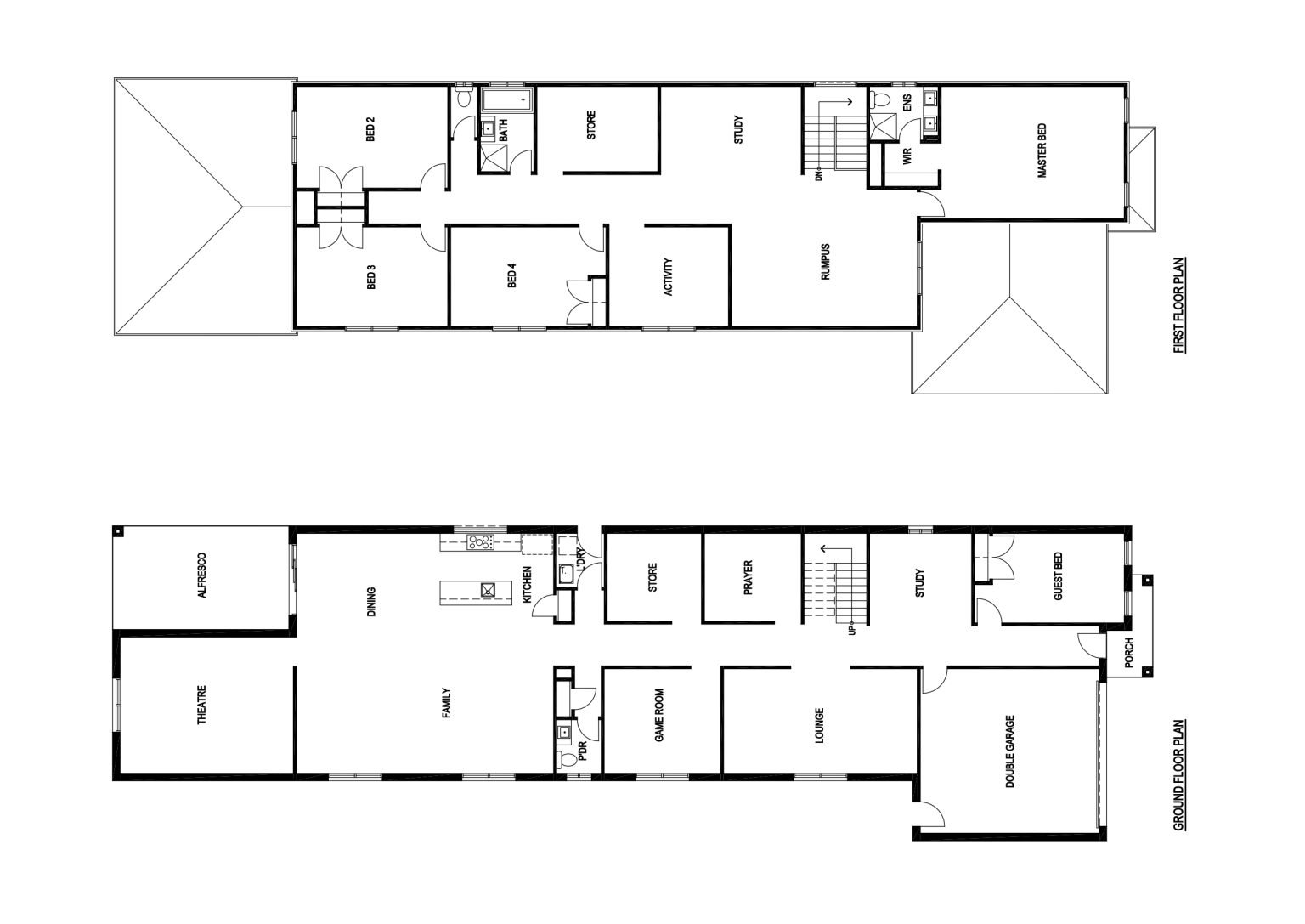
Home Dimensions
House Area450.57 m2 (48.50 sqr.)
Garage Area36.24 m2 (3.90 sqr.)
Portico3.74 m2 (0.40 sqr.)
Alfresco20.37 m2 (2.19 sqr.)
Total Area510.94 m2 (55.00 sqr.)
House Width10.50 m
House Length 34.76 m
Minimum Block Width12.50 m
Room Dimensions
Family8.61m x 3.49m
Dining4.81m x 4.53m
Lounge6.48m x 3.50m
Master Bed6.13m x 4.43m
Guest Bed4.50m x 3.00m
Bed 25.07m x 3.40m
Bed 35.07m x 3.33m
Theatre5.80m x 4.56m
Game Room3.90m x 3.50m
Rumpus6.22m x 5.08m
Double Garage6.00m x 5.50m