HACIENDA 20

From: $ 364,354

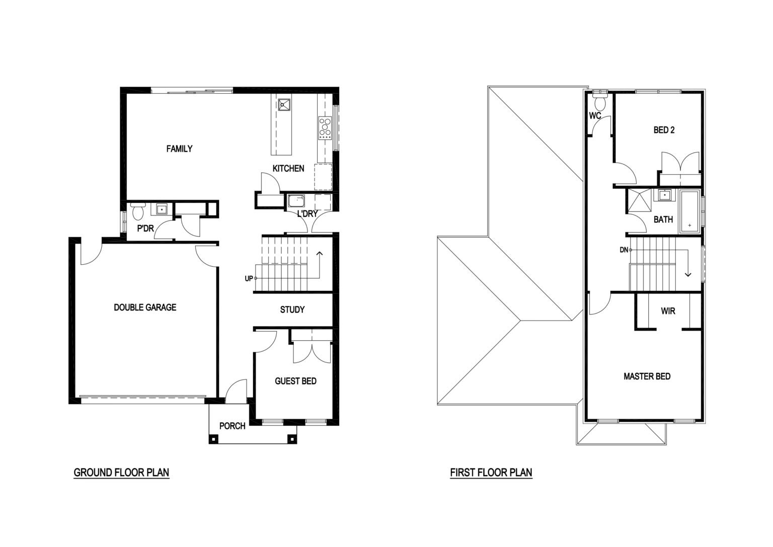
Home Dimensions
House Area256.43 m2 (27.06 sqr.)
Garage Area36.19 m2 (3.90 sqr.)
Portico6.32 m2 (0.68 sqr.)
Balcony12.95 m2 (1.39 sqr.)
Total Area325.44 m2 (35.03 sqr.)
House Width10.35 m
House Length 12.65 m
Minimum Block Width12.50 m
Room Dimensions
Family4.15m x 5.62m
Master Bed4.43m x 3.45m
Guest Bed3.00m x 3.00m
Bed 23.00m x 3.34m
Double Garage6.00m x 5.50m