EDIFACE 60
From: $ 693,857
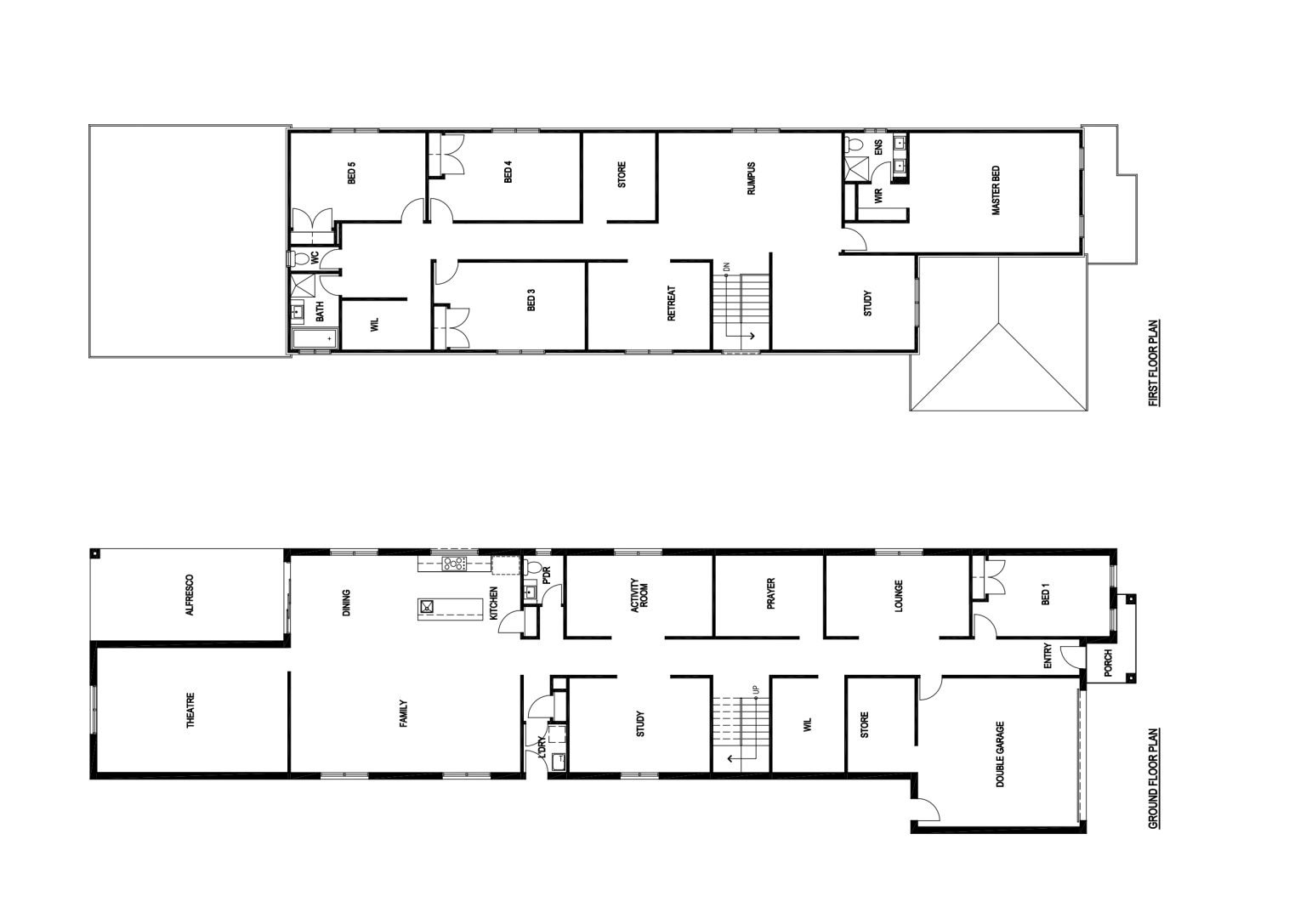
| Home Dimensions |
| House Area | 492.91 m2 (53.06 sqr.) |
| Garage Area | 36.34 m2 (3.91 sqr.) |
| Portico | 4.02 m2 (0.43 sqr.) |
| Alfresco | 24.31 m2 (2.62sqr.) |
| Total Area | 557.43 m2 (60.00 sqr.) |
| House Width | 10.50 m |
| House Length | 38.59 m |
| Minimum Block Width | 12.50 m |
| Room Dimensions |
| Family | 8.50m x 4.93m |
| Dining | 4.70m x3.09m |
| Master Bed | 6.30m x 4.43m |
| Bed 1 | 4.50m x 3.00m |
| Bed 2 | 5.00m x 3.24m |
| Bed 3 | 5.00m x 3.25m |
| Bed 4 | 5.00m x 3.25m |
| Lounge | 5.30m x 3.09m |
| Rumpus | 6.78m x 4.43m |
| Activity Room | 5.40m x 3.09m |
| Theatre | 7.06m x 4.62m |
| Prayer | 4.00m x 3.09m |
| Retreat | 4.52m x 3.25m |
| Double Garage | 6.00m x 5.50m |