EDIFACE 45

From: $ 577,803

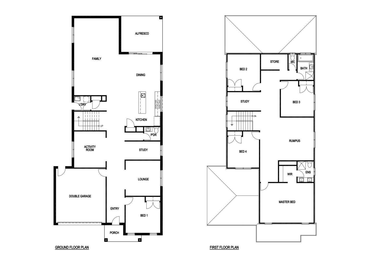
Home Dimensions
House Area358.38 m2 (38.58sqr.)
Garage Area36.24 m2 (3.90 sqr.)
Portico5.24 m2 (0.56 sqr.)
Alfresco18.19 m2 (1.96 sqr.)
Total Area418.05 m2 (45.00 sqr.)
House Width12.00 m
House Length 24.88 m
Minimum Block Width14.00 m
Room Dimensions
Family8.51m x 4.95m
Dining4.13m x 4.57m
Lounge3.90m x 3.84m
Master Bed4.40m x 5.93m
Bed 13.40m x 3.84m
Bed 23.48m x 3.60m
Bed 33.34m x 3.64m
Bed 43.41m x 3.50m
Activity Room4.01m x 3.50m
Rumpus4.74m x 5.93m
Double Garage6.00m x 5.50m