DIMORA 60
From: $ 687,139
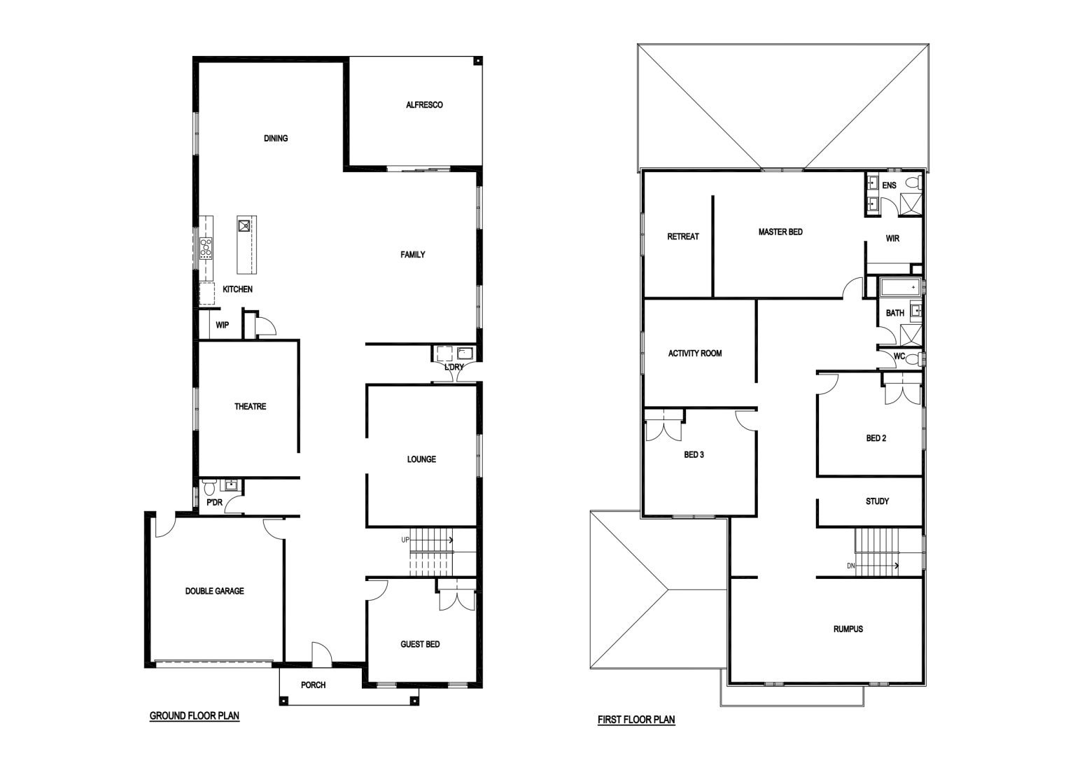
| Home Dimensions |
| House Area | 489.16 m2 (52.65 sqr.) |
| Garage Area | 36.38 m2 (3.92 sqr.) |
| Portico | 6.99 m2 (0.75 sqr.) |
| Alfresco | 25.00 m2 (2.69 sqr.) |
| Total Area | 557.53 m2 (60.00 sqr.) |
| House Width | 14.00 m |
| House Length | 26.86 m |
| Minimum Block Width | 16.00 m |
| Room Dimensions |
| Family | 7.09m x 5.52m |
| Dining | 4.53m x 6.00m |
| Master Bed | 5.20m x 6.24m |
| Guest Bed | 3.70m x 4.50m |
| Bed 2 | 3.66m x 4.30m |
| Bed 3 | 3.80m x 4.60m |
| Theatre | 5.60m x 4.10m |
| Retreat | 5.20m x 2.80m |
| Lounge | 5.79m x 4.50m |
| Activity Room | 4.44m x 4.60m |
| Rumpus | 4.30m x 7.93m |
| Double Garage | 6.00m x 5.50m |