DIMORA 50
From: $ 609,913
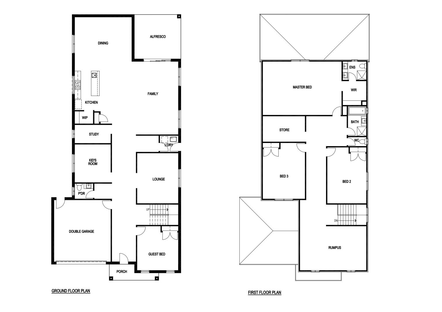
| Home Dimensions | |
| House Area | 403.59 m2 (43.44 sqr.) |
| Garage Area | 36.38 m2 (3.92 sqr.) |
| Portico | 5.34 m2 (0.57 sqr.) |
| Alfresco | 19.35 m2 (2.08 sqr.) |
| Total Area | 464.66 m2 (50.00 sqr.) |
| House Width | 12.51 m |
| House Length | 25.73 m |
| Minimum Block Width | 16.00 m |
| Room Dimensions | |
| Family | 7.09m x 4.50m |
| Dining | 4.30m x 5.53m |
| Master Bed | 5.20m x 7.64m |
| Guest Bed | 3.70m x 4.00m |
| Bed 2 | 4.85m x 3.80m |
| Bed 3 | 4.84m x 4.10m |
| Kid’s Room | 3.71m x 3.50m |
| Lounge | 4.89m x 4.00m |
| Rumpus | 4.30m x 6.44m |
| Double Garage | 6.00m x 5.50m |
