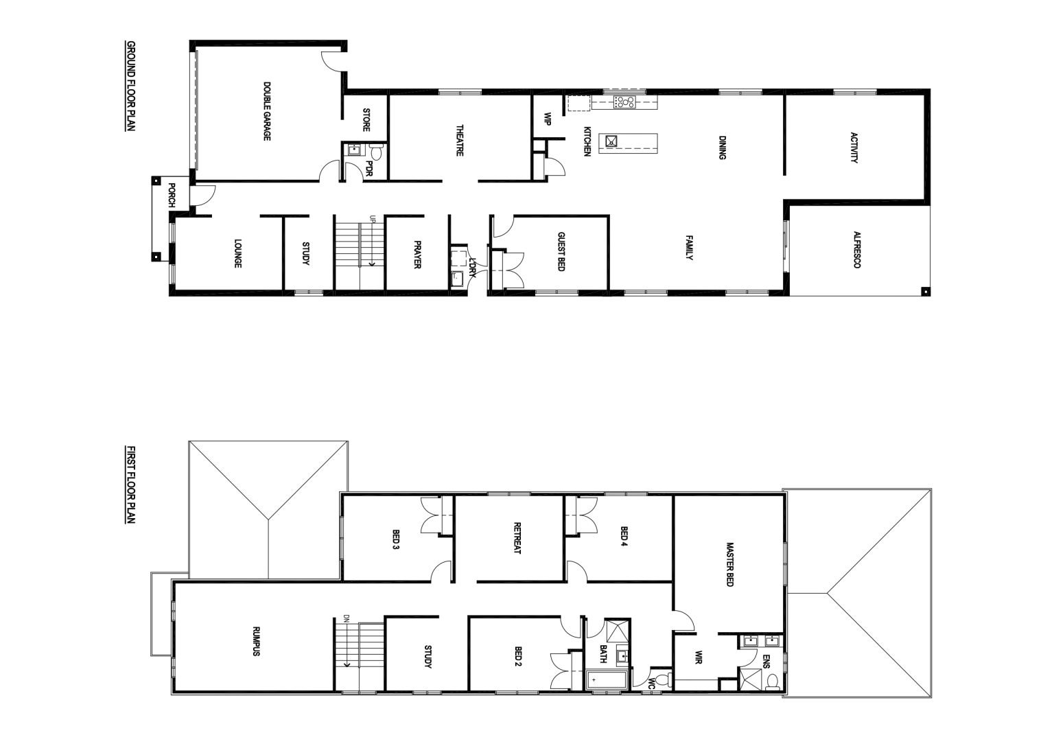
DIMORA 50

From: $ 609,336

Home Dimensions
House Area403.40 m2 (43.42 sqr.)
Garage Area36.24 m2 (3.90 sqr.)
Portico3.67 m2 (0.39 sqr.)
Alfresco21.54 m2 (2.32 sqr.)
Total Area464.50 m2 (50.00sqr.)
House Width10.50 m
House Length 31.98 m
Minimum Block Width12.50 m
Room Dimensions
Family7.15m x 4.43m
Dining5.18m x4.30m
Master Bed4.48m x 5.63m
Guest Bed 4.15m x 3.00m
Bed 24.03m x 3.00m
Bed 33.90m x 3.50m
Bed 43.80m x 3.50m
Lounge4.41m x 3.09m
Rumpus6.50m x 4.43m
Theatre5.81m x 3.50m
Activity5.70m x 4.30m
Retreat4.43m x 3.50m
Double Garage6.00m x 5.50m