DIMORA 45

From: $ 566,021

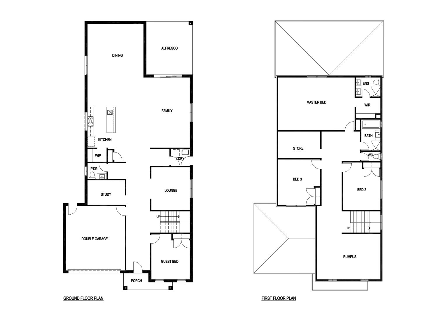
Home Dimensions
House Area355.33 m2 (38.24 sqr.)
Garage Area36.38 m2 (3.92 sqr.)
Portico5.18 m2 (0.55 sqr.)
Alfresco21.28 m2 (2.29 sqr.)
Total Area418.07 m2 (45.00 sqr.)
House Width12 m
House Length 24.89 m
Minimum Block Width14 m
Room Dimensions
Family6.54m x 4.30m
Dining4.95m x 5.22m
Master Bed4.92m x 7.13m
Guest Bed3.65m x 3.60m
Bed 23.84m x 3.50m
Bed 34.23m x 3.34m
Lounge4.00m x 3.60m
Rumpus4.25m x 5.93m
Double Garage6.00m x 5.50m
Room Dimensions
Family6.54m x 4.30m
Dining4.95m x 5.22m
Master Bed4.92m x 7.13m
Guest Bed3.65m x 3.60m
Bed 23.84m x 3.50m
Bed 34.23m x 3.34m
Lounge4.00m x 3.60m
Rumpus4.25m x 5.93m
Double Garage6.00m x 5.50m