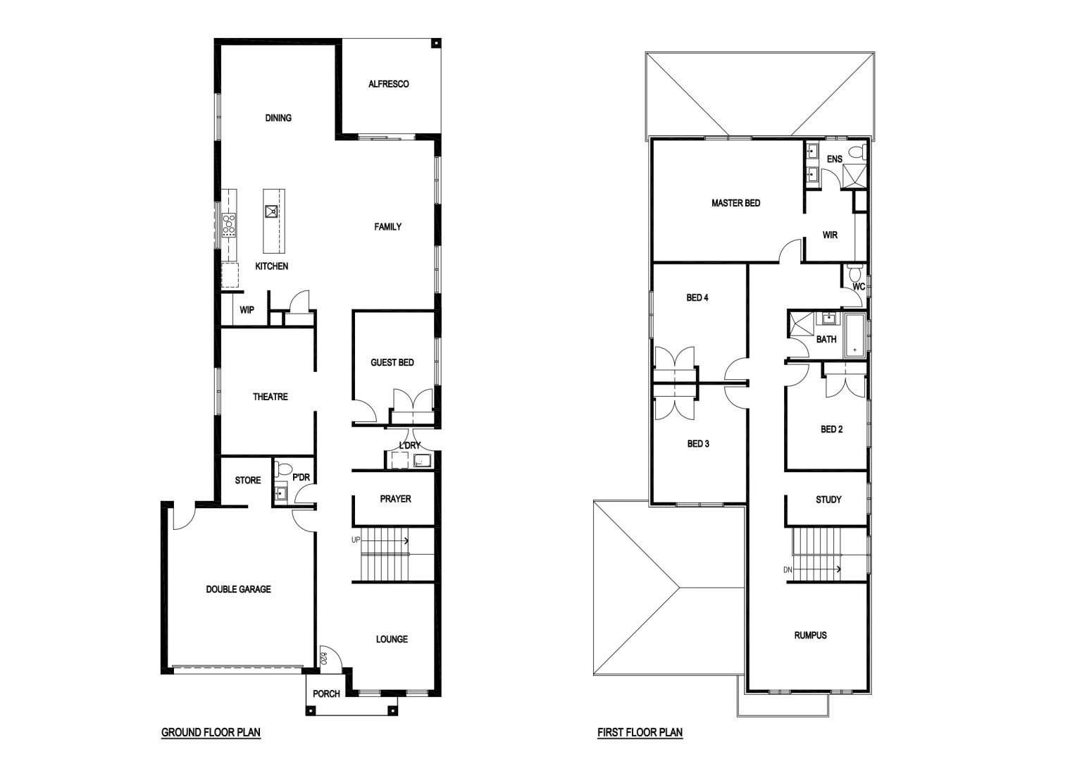
DIMORA 40
From: $ 526,910
| Home Dimensions | |
| House Area | 318.36 m2 (34.27 sqr.) |
| Garage Area | 36.38 m2 (3.92 sqr.) |
| Portico | 3.69 m2 (0.39 sqr.) |
| Alfresco | 13.28 m2 (1.43 sqr.) |
| Total Area | 371.60 m2 (40.00 sqr.) |
| House Width | 10.50 m |
| House Length | 25.36 m |
| Minimum Block Width | 12.50 m |
| Room Dimensions | |
| Family | 6.35m x 4.43m |
| Dining | 5.41m x4.30m |
| Master Bed | 4.54m x 5.63m |
| Guest Bed | 3.60m x 3.00m |
| Bed 2 | 3.42m x 3.00m |
| Bed 3 | 3.83m x 3.50m |
| Bed 4 | 3.83m x 3.50m |
| Lounge | 4.00m x 3.09m |
| Rumpus | 4.00m x 4.43m |
| Theatre | 4.75m x 3.50m |
| Double Garage | 6.00m x 5.50m |
